Casa semindipendente in vendita

Voghera, Via Agostino Depretis
€ 164.000
3 locali 3 locali
142 Mq 142 Mq
2 bagni 2 bagni

Casa semindipendente in vendita

Voghera, Via Agostino Depretis

Descrizione annuncio

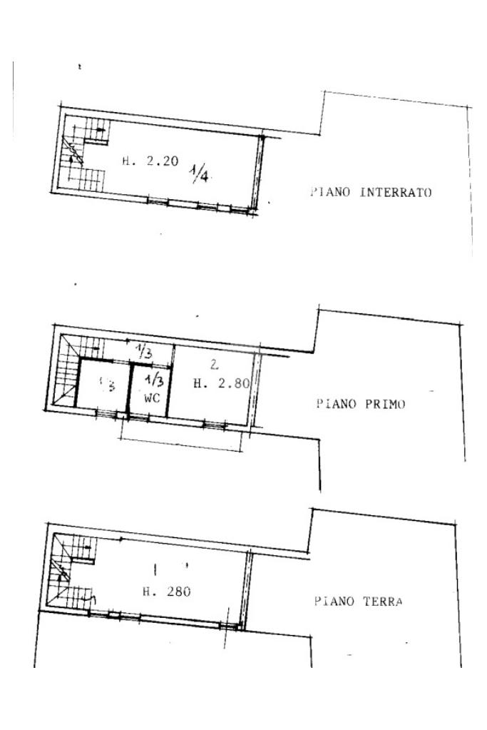
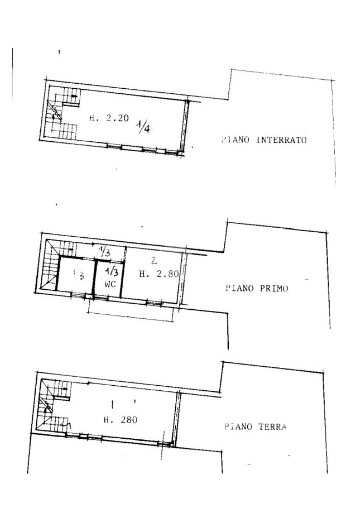
VOGHERA - Nel cuore del centro storico di Voghera, proponiamo in vendita una casa semindipendente che si sviluppa su più livelli, offrendo una soluzione abitativa versatile e funzionale.

Al piano terra, l'immobile accoglie con un ampio soggiorno e una cucina a vista, creando un ambiente ideale per la vita quotidiana e per momenti di convivialità; al piano superiore, la zona notte è composta da una camera matrimoniale, una stanza singola e un bagno, garantendo comfort e privacy.

La proprietà include anche un balcone, perfetto per momenti di relax all'aperto.

Completano l'offerta un ampio seminterrato, ideale per uso cantina o spazio hobby, e un box auto, che rappresenta un valore aggiunto in una zona centrale.

Il riscaldamento è regolabile autonomamente grazie alla propria caldaia e la casa è dotata anche di aria condizionata, assicurando un ambiente confortevole in ogni stagione.

Questa abitazione rappresenta una perfetta combinazione tra tranquillità, spazio e praticità.

Ogni agenzia ha un proprio titolare ed è autonoma.

Il nostro Studio si trova in centro storico, zona pedonale, sulla via che collega la stazione ferroviaria con la via Emilia.

Gli orari di apertura al pubblico sono:

da LUNEDI a VENERDI 9.00-12.30 - 14.30- 19.00

SABATO 9.00-12.30

Siamo presenti anche su Facebook ed Instagram.

Per una ricerca più rapida e in mobilità potete scaricare dal vostro smartphone o tablet l'applicazione gratuita Tecnocasa. Avrete aggiornamenti delle nostre nuove proposte sempre in tempo reale!

Mostra tutto

Nelle vicinanze

Trasporto pubblico Trasporto pubblico
stazione di Voghera
stazione di Voghera
450 m
Trasporto pubblico
380 m
Ricariche auto elettriche Ricariche auto elettriche
Voghera Lomellina | BECHARGE
2,0 Km
Scuole Scuole
Ist. Tecnico Vittorio Alfieri
140 m
Istituto Santa Caterina
220 m
Scuole
220 m
Istituto Santachiara ODPF
270 m
IPSIA "Carlo Calvi"
270 m
Farmacia Farmacia
Farmacia Dottor Zanini
50 m
Parafarmacia PARAFARM - Dott. Murelli
60 m
Parafarmacia Plana - Dott. Cairo
70 m
Farmacia Dottor Gandini
120 m
Farmacia Dottor Gregotti
170 m
Ospedali Ospedali
Ospedale civile di voghera entrata posteriore
530 m
Ospedale Civile di Voghera
640 m
Casa di Cura Santa Maria delle Grazie
840 m
Supermercati Supermercati
Tigota
220 m
Gulliver
250 m
Supermercati
810 m
Esselunga
830 m
LD Market
1,0 Km
Negozi Negozi
Crevani srl
50 m
Capital Sport
60 m
Calzedonia
70 m
Panificio Sari
100 m
IperSoap
110 m
Bar Bar
Bar Teatro
60 m
Bar Maxi
70 m
Bar
80 m
Envidia
200 m
Leon d'Oro Café
220 m
Ristoranti Ristoranti
Ristorante Rimulàs
80 m
Centro Japanese restaurant
140 m
Pizzeria Gallo Rosso
180 m
Ristorante Pio e Vale
260 m
Ristorante Al Vapore
340 m
Mostra tutto

Caratteristiche

Rif.:
61121630
Piano:
Su più livelli di 1
Totale piani:
1
Box:
1
Balconi:
1
Camere da letto:
2
Mostra tutto
Prezzo Prezzo
€ 164.000
Rata mutuo Rata mutuo
€ 773 / mese
Spese annue Spese annue
€ 0
Proponi il tuo prezzoProponi il tuo prezzo

Classe Energetica

F
F
F
F
F
F
F
F
F
EP globale non rinnovabile:
128.67 kW h/m² anno
EP invernale del fabbricato:
EP estiva del fabbricato:
Anno di costruzione:
1960
Riscaldamento:
Autonomo
Tipo impianto:
A radiatori
Tipo alimentazione:
Metano

Ti interessa visionare l'immobile?

Fissa un appuntamento  Fissa un appuntamento

Richiedi informazioni

Clicca su Leggi per aprire l'informativa
* Questi campi sono obbligatori

Calcola il tuo mutuo

Semplice e senza impegno
Anticipo

( % )
Mutuo

( % )

pochi semplici passi

inserisci i tuoi dati
Questionario completato
Grazie per aver richiesto un appuntamento senza impegno con un nostro Consulente del Credito e Assicurativo.

Hai inserito correttamente tutti i dati necessari e a breve riceverai una e-mail con un link da convalidare per inviare i tuoi dati.
Affiliato
Studio Voghera Uno Sas
Via Giovanni Plana, 34 27058 Voghera (PV)

Il nostro staff


  • Mohammed Dodi Bensoltane
    Affiliato

  • Gioele De Lio
    Collaboratore
Via Giovanni Plana, 34 27058 Voghera (PV)
Zona: Voghera-Zona Cignoli-Medassino-Casei Gerola-Corana-Oriolo
Mostra su mappa
Orari: Lunedi - Venerdì 09:00 - 12:30 14:30 - 19:00 Sabato 09:00 - 12:30
Affiliato
Studio Voghera Uno Sas
Via Giovanni Plana, 34 27058 Voghera (PV)

2026 Tecnocasa Franchising S.p.A. - P. IVA 08365160152 - Via Monte Bianco 60/A 20089 Rozzano (MI). Ogni agenzia ha un proprio titolare ed è autonoma. Privacy policy | Policy utilizzo | Cookie policy