Trilocale in vendita

Voghera, Via Giuseppe Pacchiarotti - Medassino
€ 49.000
3 locali 3 locali
95 Mq 95 Mq
1 bagno 1 bagno

Trilocale in vendita

Voghera, Via Giuseppe Pacchiarotti - Medassino

Descrizione annuncio

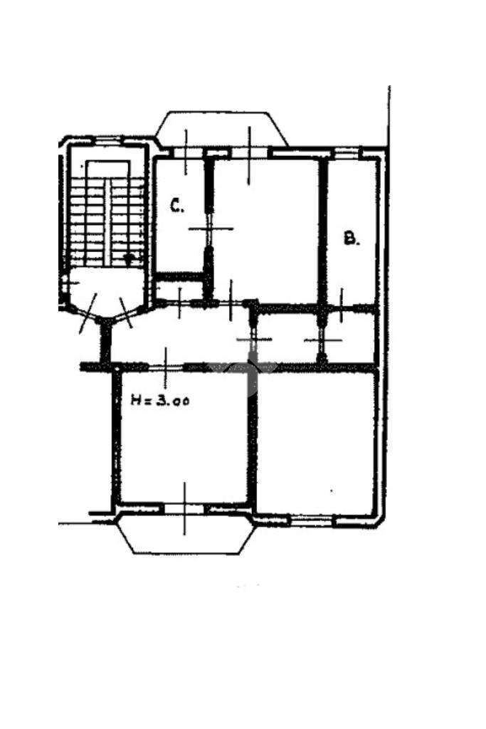
VOGHERA - A metà strada tra Piazza Meardi e l'ingresso del casello autostradale, proponiamo un appartamento situato al terzo piano di un edificio dotato di ascensore.

L'immobile offre spazi ben distribuiti e funzionali con ingresso su un ampio soggiorno con cucina a vista che accoglie gli ospiti e crea un ambiente conviviale e luminoso. Le due camere matrimoniali garantiscono comfort e privacy, ideali per famiglie o coppie; un disimpegno conduce al bagno, dotato di vasca, perfetto per momenti di relax.

La porta d'ingresso è blindata, gli infissi sono in legno, i pavimenti in marmetta e ceramica e il riscaldamento è garantito dalla caldaia condominiale ed è regolabile in maniera autonoma grazie alle termovalvole di consumo.

Completano la proprietà due balconi, che offrono spazi esterni per godere di momenti all'aria aperta. L'appartamento rappresenta una soluzione abitativa pratica e ben collegata, adatta a chi cerca comodità e tranquillità in una zona residenziale.

Per maggiori informazioni contattare l'agenzia immobiliare Tecnocasa sita in Voghera (PV) via Plana Giovanni, 34.
Ogni agenzia ha un proprio titolare ed è autonoma.
Il nostro Studio si trova in centro storico, zona pedonale, sulla via che collega la stazione ferroviaria con la via Emilia.
Gli orari di apertura al pubblico sono:
da LUNEDI a VENERDI 9.00-12.30 - 14.30- 19.00
SABATO 9.00-12.30
Siamo presenti anche su Facebook ed Instagram.
Per una ricerca più rapida e in mobilità potete scaricare dal vostro smartphone o tablet l'applicazione gratuita Tecnocasa. Avrete aggiornamenti delle nostre nuove proposte sempre in tempo reale!

Mostra tutto

Nelle vicinanze

Trasporto pubblico Trasporto pubblico
stazione di Voghera
stazione di Voghera
1,5 Km
Trasporto pubblico
1,2 Km
Ricariche auto elettriche Ricariche auto elettriche
Voghera Lomellina | BECHARGE
620 m
Ariel Car Freedom Mobility
2,7 Km
Scuole Scuole
Scuola Materna Palli
790 m
Scuole Elementari Edmondo De Amicis
940 m
Istituto superiore A. Maserati
1,0 Km
Istituto superiore A. Maserati
1,0 Km
Istituto Tecnico Agrario Gallini
1,1 Km
Farmacia Farmacia
Farmacia Comunale n.1
520 m
Farmacia del Rondò
1,2 Km
Farmacia Dottor Gandini
1,4 Km
Farmacia Dottor Zanini
1,4 Km
Parafarmacia PARAFARM - Dott. Murelli
1,4 Km
Ospedali Ospedali
Casa di Cura Santa Maria delle Grazie
830 m
Ospedale civile di voghera entrata posteriore
1,9 Km
Ospedale Civile di Voghera
2,0 Km
Supermercati Supermercati
Gulliver
480 m
Supermercati
960 m
LIDL
990 m
Coop
1,1 Km
Tigota
1,6 Km
Negozi Negozi
Pianeta Sport
870 m
La Sergiu - Prodotti di Romania
960 m
Pasticceria San Felice
1,1 Km
Le notti di Sonia
1,1 Km
Negozi
1,1 Km
Bar Bar
Bar Cavallino
700 m
Ibari café
850 m
Bar Giglio D'Oro
1,1 Km
Bar Ligure
1,1 Km
Envidia
1,2 Km
Ristoranti Ristoranti
Antica Trattoria Lombardia
370 m
Bar Trattoria Da Sofia
900 m
Pizzeria Popipopi
960 m
Ristorante Al Vapore
1,3 Km
Pizzeria Gallo Rosso
1,4 Km
Mostra tutto

Caratteristiche

Rif.:
61196047
Piano:
3 di 4 con ascensore (Piano medio)
Balconi:
2
Camere da letto:
2
Arredamento:
Assente
Condizionamento:
Assente
Mostra tutto
Prezzo Prezzo
€ 49.000
Rata mutuo Rata mutuo
€ 231 / mese
Spese annue Spese annue
€ 1.200
Proponi il tuo prezzoProponi il tuo prezzo

Classe Energetica

F
F
F
F
F
F
F
F
F
EP globale non rinnovabile:
292.62 kW h/m² anno
EP invernale del fabbricato:
EP estiva del fabbricato:
Anno di costruzione:
1970
Riscaldamento:
Autonomo
Tipo impianto:
A radiatori
Tipo alimentazione:
Metano

Ti interessa visionare l'immobile?

Fissa un appuntamento  Fissa un appuntamento

Richiedi informazioni

Clicca su Leggi per aprire l'informativa
* Questi campi sono obbligatori

Calcola il tuo mutuo

Semplice e senza impegno
Anticipo

( % )
Mutuo

( % )

pochi semplici passi

inserisci i tuoi dati
Questionario completato
Grazie per aver richiesto un appuntamento senza impegno con un nostro Consulente del Credito e Assicurativo.

Hai inserito correttamente tutti i dati necessari e a breve riceverai una e-mail con un link da convalidare per inviare i tuoi dati.
Affiliato
Studio Voghera Uno Sas
Via Giovanni Plana, 34 27058 Voghera (PV)

Il nostro staff


  • Mohammed Dodi Bensoltane
    Affiliato

  • Gioele De Lio
    Collaboratore
Via Giovanni Plana, 34 27058 Voghera (PV)
Zona: Voghera-Zona Cignoli-Medassino-Casei Gerola-Corana-Oriolo
Mostra su mappa
Orari: Lunedi - Venerdì 09:00 - 12:30 14:30 - 19:00 Sabato 09:00 - 12:30
Affiliato
Studio Voghera Uno Sas
Via Giovanni Plana, 34 27058 Voghera (PV)

2026 Tecnocasa Franchising S.p.A. - P. IVA 08365160152 - Via Monte Bianco 60/A 20089 Rozzano (MI). Ogni agenzia ha un proprio titolare ed è autonoma. Privacy policy | Policy utilizzo | Cookie policy