Trilocale in vendita

Voghera, Strada Mezzana
€ 159.000
3 locali 3 locali
120 Mq 120 Mq
2 bagni 2 bagni

Trilocale in vendita

Voghera, Strada Mezzana

Descrizione annuncio

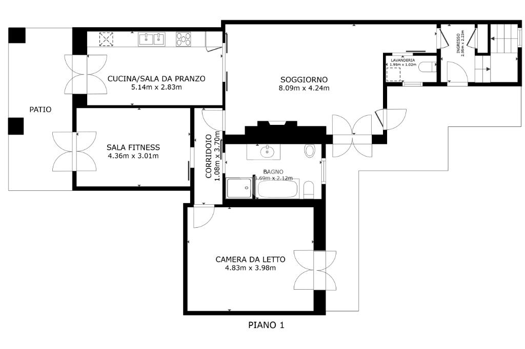
VOGHERA - A 300 metri dalle scuole Don Orione in contesto residenziale tranquillo, proponiamo in vendita un appartamento al piano terra che offre comfort e funzionalità.

L'immobile, recentemente ristrutturato, è composto da un ampio soggiorno, due camere da letto, doppi servizi e una cucina abitabile, ideale per chi ama cucinare e trascorrere momenti conviviali.

L'immobile è dotato di impianto di riscaldamento autonomo e aria condizionata, assicurando un clima ideale in ogni stagione. Gli infissi in pvc, la porta blindata, e le finiture ricercate aggiungono ulteriore valore alla soluzione.

Il giardino privato rappresenta un'oasi di tranquillità, perfetta per rilassarsi all'aperto o per chi ha il pollice verde.

La zona porticata aggiunge un ulteriore spazio esterno coperto, utile per pranzi all'aperto o come area relax. L'appartamento dispone inoltre di un box auto, garantendo comodità e sicurezza per il parcheggio

Per maggiori informazioni contattare l'agenzia immobiliare Tecnocasa sita in Voghera (PV) via Plana Giovanni, 34.
Ogni agenzia ha un proprio titolare ed è autonoma.
Il nostro Studio si trova in centro storico, zona pedonale, sulla via che collega la stazione ferroviaria con la via Emilia.
Gli orari di apertura al pubblico sono:
da LUNEDI a VENERDI 9.00-12.30 - 14.30- 19.00
SABATO 9.00-12.30
Siamo presenti anche su Facebook ed Instagram.
Per una ricerca più rapida e in mobilità potete scaricare dal vostro smartphone o tablet l'applicazione gratuita Tecnocasa. Avrete aggiornamenti delle nostre nuove proposte sempre in tempo reale!

Mostra tutto

Nelle vicinanze

Trasporto pubblico Trasporto pubblico
stazione di Voghera
stazione di Voghera
1,4 Km
Trasporto pubblico
870 m
Ricariche auto elettriche Ricariche auto elettriche
Voghera Lomellina | BECHARGE
1,1 Km
Scuole Scuole
Istituto superiore A. Maserati
450 m
Istituto superiore A. Maserati
450 m
Istituto Tecnico Agrario Gallini
600 m
Scuola Materna Palli
670 m
Scuola Media Ststale Giovanni Pascoli
800 m
Farmacia Farmacia
Farmacia Comunale n.1
410 m
Farmacia Dottor Gandini
1,1 Km
Parafarmacia Essere Benessere
1,1 Km
Farmacia Dottor Gregotti
1,1 Km
Farmacia Dottor Zanini
1,2 Km
Ospedali Ospedali
Casa di Cura Santa Maria delle Grazie
370 m
Ospedale civile di voghera entrata posteriore
1,7 Km
Ospedale Civile di Voghera
1,8 Km
Supermercati Supermercati
Gulliver
210 m
Coop
540 m
Supermercati
660 m
LIDL
690 m
Tigota
1,4 Km
Negozi Negozi
Pianeta Sport
420 m
UPIM
630 m
La Sergiu - Prodotti di Romania
680 m
Le notti di Sonia
820 m
Pasticceria San Felice
840 m
Bar Bar
Ibari café
400 m
Bar Ligure
810 m
Bar Giglio D'Oro
840 m
Bar Cervinia
890 m
Envidia
970 m
Ristoranti Ristoranti
Antica Trattoria Lombardia
400 m
Bar Trattoria Da Sofia
430 m
Pizzeria Popipopi
570 m
Pizzeria Gallo Rosso
1,2 Km
Ristorante Pio e Vale
1,2 Km
Mostra tutto

Caratteristiche

Rif.:
61153725
Piano:
Terra con giardino
Box:
1
Camere da letto:
2
Arredamento:
Assente
Condizionamento:
Autonomo
Mostra tutto
Prezzo Prezzo
€ 159.000
Rata mutuo Rata mutuo
€ 749 / mese
Spese annue Spese annue
€ 0
Proponi il tuo prezzoProponi il tuo prezzo

Classe Energetica

F
F
F
F
F
F
F
F
F
EP globale non rinnovabile:
253.70 kW h/m² anno
EP invernale del fabbricato:
EP estiva del fabbricato:
Anno di costruzione:
1960
Riscaldamento:
Autonomo
Tipo impianto:
A radiatori
Tipo alimentazione:
Metano

Ti interessa visionare l'immobile?

Fissa un appuntamento  Fissa un appuntamento

Richiedi informazioni

Clicca su Leggi per aprire l'informativa
* Questi campi sono obbligatori

Calcola il tuo mutuo

Semplice e senza impegno
Anticipo

( % )
Mutuo

( % )

pochi semplici passi

inserisci i tuoi dati
Questionario completato
Grazie per aver richiesto un appuntamento senza impegno con un nostro Consulente del Credito e Assicurativo.

Hai inserito correttamente tutti i dati necessari e a breve riceverai una e-mail con un link da convalidare per inviare i tuoi dati.
Affiliato
Studio Voghera Uno Sas
Via Giovanni Plana, 34 27058 Voghera (PV)

Il nostro staff


  • Mohammed Dodi Bensoltane
    Affiliato

  • Gioele De Lio
    Collaboratore
Via Giovanni Plana, 34 27058 Voghera (PV)
Zona: Voghera-Zona Cignoli-Medassino-Casei Gerola-Corana-Oriolo
Mostra su mappa
Orari: Lunedi - Venerdì 09:00 - 12:30 14:30 - 19:00 Sabato 09:00 - 12:30
Affiliato
Studio Voghera Uno Sas
Via Giovanni Plana, 34 27058 Voghera (PV)

2026 Tecnocasa Franchising S.p.A. - P. IVA 08365160152 - Via Monte Bianco 60/A 20089 Rozzano (MI). Ogni agenzia ha un proprio titolare ed è autonoma. Privacy policy | Policy utilizzo | Cookie policy