Quadrilocale in vendita

Voghera, Via Carlo Bandirola
€ 125.000
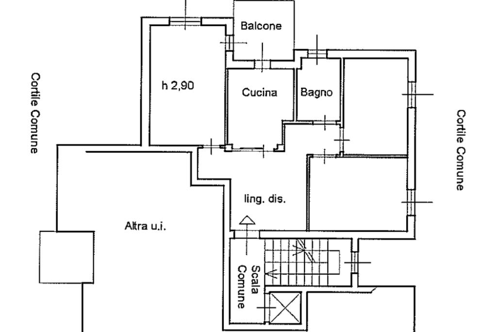
4 locali 4 locali
108 Mq 108 Mq
1 bagno 1 bagno

Quadrilocale in vendita

Voghera, Via Carlo Bandirola

Descrizione annuncio

VOGHERA - A 300 metri dalle scuole medie Don Orione, in una zona residenziale serena e ben curata, sorge questo appartamento dove ogni ambiente racconta la sensazione di casa. Situato al secondo piano di una piccola palazzina con ascensore, offre spazi ben distribuiti e luminosi, perfetti per accogliere la vita di tutti i giorni.

Il soggiorno, ampio e confortevole, invita a trascorrere momenti di relax in famiglia, mentre la cucina abitabile è il luogo ideale per condividere i profumi e i sapori delle giornate insieme. La zona notte, tranquilla e riservata, ospita una camera matrimoniale dove ritrovare il proprio spazio, due camere pensate per i più piccoli o per creare uno studio accogliente, e un bagno con doccia rinnovato nei toni della praticità e del comfort.

I dettagli raccontano la cura di una casa vissuta con amore: pavimenti in ceramica, porte e serramenti in legno, tapparelle in PVC e termosifoni in ghisa. Il riscaldamento autonomo con caldaia a metano e la presenza dell’aria condizionata con pompa di calore garantiscono benessere in ogni stagione.

A completare la proprietà ci sono un grazioso terrazzino, ideale per un caffè al mattino, un box auto e una cantina.
Un appartamento che unisce funzionalità e calore, perfetto per chi sogna una casa accogliente, in un contesto tranquillo e vicino a tutto ciò che serve.


Per maggiori informazioni contattare l'agenzia immobiliare Tecnocasa sita in Voghera (PV) via Plana Giovanni, 34.
Ogni agenzia ha un proprio titolare ed è autonoma.
Il nostro Studio si trova in centro storico, zona pedonale, sulla via che collega la stazione ferroviaria con la via Emilia.
Gli orari di apertura al pubblico sono:
da LUNEDI a VENERDI 9.00-12.30 - 14.30- 19.00
SABATO 9.00-12.30
Siamo presenti anche su Facebook ed Instagram.
Per una ricerca più rapida e in mobilità potete scaricare dal vostro smartphone o tablet l'applicazione gratuita Tecnocasa. Avrete aggiornamenti delle nostre nuove proposte sempre in tempo reale!

Mostra tutto

Nelle vicinanze

Trasporto pubblico Trasporto pubblico
stazione di Voghera
stazione di Voghera
1,8 Km
Trasporto pubblico
1,4 Km
Ricariche auto elettriche Ricariche auto elettriche
Voghera Lomellina | BECHARGE
670 m
Ariel Car Freedom Mobility
2,6 Km
Scuole Scuole
Istituto superiore A. Maserati
890 m
Istituto superiore A. Maserati
900 m
Scuola Materna Palli
1,1 Km
Istituto Tecnico Agrario Gallini
1,1 Km
Scuole Elementari Edmondo De Amicis
1,2 Km
Farmacia Farmacia
Farmacia Comunale n.1
780 m
Farmacia Dottor Gandini
1,6 Km
Farmacia del Rondò
1,6 Km
Farmacia Dottor Gregotti
1,6 Km
Parafarmacia Essere Benessere
1,7 Km
Ospedali Ospedali
Casa di Cura Santa Maria delle Grazie
890 m
Ospedale civile di voghera entrata posteriore
2,2 Km
Ospedale Civile di Voghera
2,3 Km
Supermercati Supermercati
Supermercati
540 m
LIDL
570 m
Gulliver
610 m
Coop
910 m
Tigota
1,8 Km
Negozi Negozi
Pianeta Sport
570 m
UPIM
1,1 Km
La Sergiu - Prodotti di Romania
1,2 Km
Pasticceria San Felice
1,3 Km
Le notti di Sonia
1,3 Km
Bar Bar
Ibari café
560 m
Bar Cavallino
710 m
Bar Ligure
1,3 Km
Bar Giglio D'Oro
1,3 Km
Bar Cervinia
1,4 Km
Ristoranti Ristoranti
Bar Trattoria Da Sofia
600 m
Antica Trattoria Lombardia
660 m
Ristorante Rallye
1,1 Km
Pizzeria Popipopi
1,1 Km
Pizzeria Gallo Rosso
1,6 Km
Mostra tutto

Caratteristiche

Rif.:
61135555
Piano:
2 di 3 con ascensore (Piano medio)
Box:
1
Terrazzi:
1
Camere da letto:
3
Arredamento:
Parziale
Mostra tutto
Prezzo Prezzo
€ 125.000
Rata mutuo Rata mutuo
€ 589 / mese
Spese annue Spese annue
€ 1.500
Proponi il tuo prezzoProponi il tuo prezzo
Immobile valutato con T·Valuta

Classe Energetica

F
F
F
F
F
F
F
F
F
EP globale non rinnovabile:
120.20 kW h/m² anno
EP invernale del fabbricato:
EP estiva del fabbricato:
Anno di costruzione:
1960
Riscaldamento:
Autonomo
Tipo impianto:
A radiatori
Tipo alimentazione:
Metano

Ti interessa visionare l'immobile?

Fissa un appuntamento  Fissa un appuntamento

Richiedi informazioni

Clicca su Leggi per aprire l'informativa
* Questi campi sono obbligatori

Calcola il tuo mutuo

Semplice e senza impegno
Anticipo

( % )
Mutuo

( % )

pochi semplici passi

inserisci i tuoi dati
Questionario completato
Grazie per aver richiesto un appuntamento senza impegno con un nostro Consulente del Credito e Assicurativo.

Hai inserito correttamente tutti i dati necessari e a breve riceverai una e-mail con un link da convalidare per inviare i tuoi dati.
Affiliato
Studio Voghera Uno Sas
Via Giovanni Plana, 34 27058 Voghera (PV)

Il nostro staff


  • Mohammed Dodi Bensoltane
    Affiliato

  • Gioele De Lio
    Collaboratore
Via Giovanni Plana, 34 27058 Voghera (PV)
Zona: Voghera-Zona Cignoli-Medassino-Casei Gerola-Corana-Oriolo
Mostra su mappa
Orari: Lunedi - Venerdì 09:00 - 12:30 14:30 - 19:00 Sabato 09:00 - 12:30
Affiliato
Studio Voghera Uno Sas
Via Giovanni Plana, 34 27058 Voghera (PV)

2026 Tecnocasa Franchising S.p.A. - P. IVA 08365160152 - Via Monte Bianco 60/A 20089 Rozzano (MI). Ogni agenzia ha un proprio titolare ed è autonoma. Privacy policy | Policy utilizzo | Cookie policy