Trilocale in vendita

Voghera, Via Vittorio Veneto
€ 88.000
3 locali 3 locali
95 Mq 95 Mq
1 bagno 1 bagno

Trilocale in vendita

Voghera, Via Vittorio Veneto

Descrizione annuncio

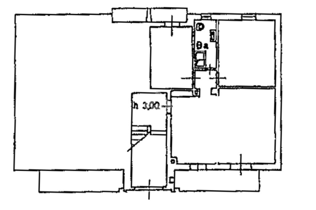
VOGHERA – In una zona residenziale riservata e ben servita, ti proponiamo un accogliente appartamento al piano rialzato di una piccola palazzina con impianti autonomi: il luogo ideale dove iniziare un nuovo capitolo della tua vita.

Varcando la soglia, ti accoglie una luminosa zona giorno con cucina a vista, perfetta per i momenti di condivisione e relax. La zona notte è composta da una camera matrimoniale, una seconda stanza versatile (perfetta come cameretta, studio o stanza degli hobby) e un bagno finestrato con doccia.

Gli impianti elettrico e idraulico sono stati completamente rifatti, così da offrirti sicurezza ed efficienza nel tempo.
Inoltre, l’abitazione è già dotata di impianto di climatizzazione con pompa di calore, per garantirti il massimo comfort sia d’estate che d’inverno.

Le finiture donano calore e personalità: porta blindata, infissi in PVC con doppi vetri, pavimenti in parquet, porte interne in legno e termosifoni in ghisa alimentati da caldaia a metano.

Completano la proprietà due balconi, box auto e cantina — tutto lo spazio che cerchi, dentro e fuori casa.

Una casa accogliente, già pronta per essere vissuta.

Ogni agenzia ha un proprio titolare ed è autonoma.

Il nostro Studio si trova in centro storico, zona pedonale, sulla via che collega la stazione ferroviaria con la via Emilia.

Gli orari di apertura al pubblico sono:

da LUNEDI a VENERDI 9.00-12.30 - 14.30- 19.00

SABATO 9.00-12.30

Siamo presenti anche su Facebook ed Instagram.

Per una ricerca più rapida e in mobilità potete scaricare dal vostro smartphone o tablet l'applicazione gratuita Tecnocasa. Avrete aggiornamenti delle nostre nuove proposte sempre in tempo reale!

Mostra tutto

Nelle vicinanze

Trasporto pubblico Trasporto pubblico
stazione di Voghera
stazione di Voghera
1,0 Km
Trasporto pubblico
810 m
Ricariche auto elettriche Ricariche auto elettriche
Voghera Lomellina | BECHARGE
1,1 Km
Scuole Scuole
Scuola Materna Palli
340 m
Scuole Elementari Edmondo De Amicis
480 m
Liceo Classico "Severino Grattoni"
750 m
Liceo Classico S. Grattoni
750 m
Scuole
760 m
Farmacia Farmacia
Farmacia Comunale n.1
170 m
Farmacia del Rondò
770 m
Farmacia Dottor Gandini
900 m
Farmacia Dottor Zanini
960 m
Parafarmacia PARAFARM - Dott. Murelli
970 m
Ospedali Ospedali
Casa di Cura Santa Maria delle Grazie
580 m
Ospedale civile di voghera entrata posteriore
1,4 Km
Ospedale Civile di Voghera
1,5 Km
Supermercati Supermercati
Gulliver
340 m
Coop
1,0 Km
Tigota
1,1 Km
Supermercati
1,2 Km
LIDL
1,2 Km
Negozi Negozi
La Sergiu - Prodotti di Romania
560 m
Pasticceria San Felice
620 m
Negozi
680 m
Le notti di Sonia
680 m
Panificio Elma
690 m
Bar Bar
Bar Giglio D'Oro
650 m
Bar Ligure
710 m
Envidia
720 m
Bar Cervinia
740 m
Bar Maxi
870 m
Ristoranti Ristoranti
Antica Trattoria Lombardia
160 m
Pizzeria Popipopi
620 m
Ristorante Al Vapore
860 m
Bar Trattoria Da Sofia
970 m
Ristorante Rimulàs
980 m
Mostra tutto

Caratteristiche

Rif.:
61118764
Piano:
Rialzato di 3
Totale piani:
3
Box:
1
Balconi:
2
Camere da letto:
2
Mostra tutto
Prezzo Prezzo
€ 88.000
Rata mutuo Rata mutuo
€ 407 / mese
Spese annue Spese annue
€ 600
Proponi il tuo prezzoProponi il tuo prezzo
Immobile valutato con TecnoValore

Classe Energetica

G
G
G
G
G
G
G
G
G
EP globale non rinnovabile:
318.89 kW h/m² anno
EP invernale del fabbricato:
EP estiva del fabbricato:
Anno di costruzione:
1960
Riscaldamento:
Autonomo
Tipo impianto:
A radiatori
Tipo alimentazione:
Metano

Ti interessa visionare l'immobile?

Fissa un appuntamento  Fissa un appuntamento

Richiedi informazioni

* Questi campi sono obbligatori

Calcola il tuo mutuo

Semplice e senza impegno
Anticipo

( % )
Mutuo

( % )

pochi semplici passi

inserisci i tuoi dati
Questionario completato
Grazie per aver richiesto un appuntamento senza impegno con un nostro Consulente del Credito e Assicurativo.

Hai inserito correttamente tutti i dati necessari e a breve riceverai una e-mail con un link da convalidare per inviare i tuoi dati.
Affiliato
Studio Voghera Uno Sas
Via Giovanni Plana, 34 27058 Voghera (PV)

Il nostro staff


  • Mohammed Dodi Bensoltane
    Affiliato

  • Gioele De Lio
    Collaboratore
Via Giovanni Plana, 34 27058 Voghera (PV)
Zona: Voghera-Zona Cignoli-Medassino-Casei Gerola-Corana-Oriolo
Mostra su mappa
Orari: Lunedi - Venerdì 09:00 - 12:30 14:30 - 19:00 Sabato 09:00 - 12:30
Affiliato
Studio Voghera Uno Sas
Via Giovanni Plana, 34 27058 Voghera (PV)

2025 Tecnocasa Franchising S.p.A. - P. IVA 08365160152 - Via Monte Bianco 60/A 20089 Rozzano (MI). Ogni agenzia ha un proprio titolare ed è autonoma. Privacy policy | Policy utilizzo | Cookie policy