Casa indipendente in vendita

Rivanazzano Terme, Viale Cristoforo Colombo - Rivanazzano
€ 169.000
4 locali 4 locali
259 Mq 259 Mq
1 bagno 1 bagno

Casa indipendente in vendita

Rivanazzano Terme, Viale Cristoforo Colombo - Rivanazzano

Descrizione annuncio

RIVANAZZANO TERME - Nel cuore del paese, a pochi passi dalle Terme e dal centro urbano proponiamo in vendita una casa indipendente di tipo signorile.

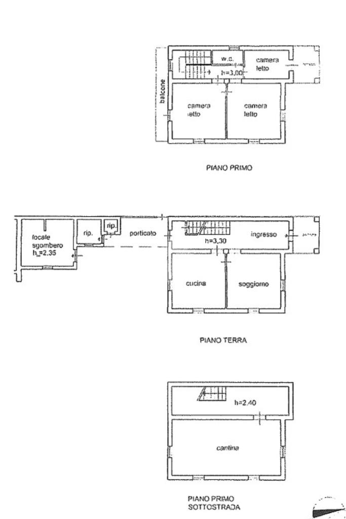
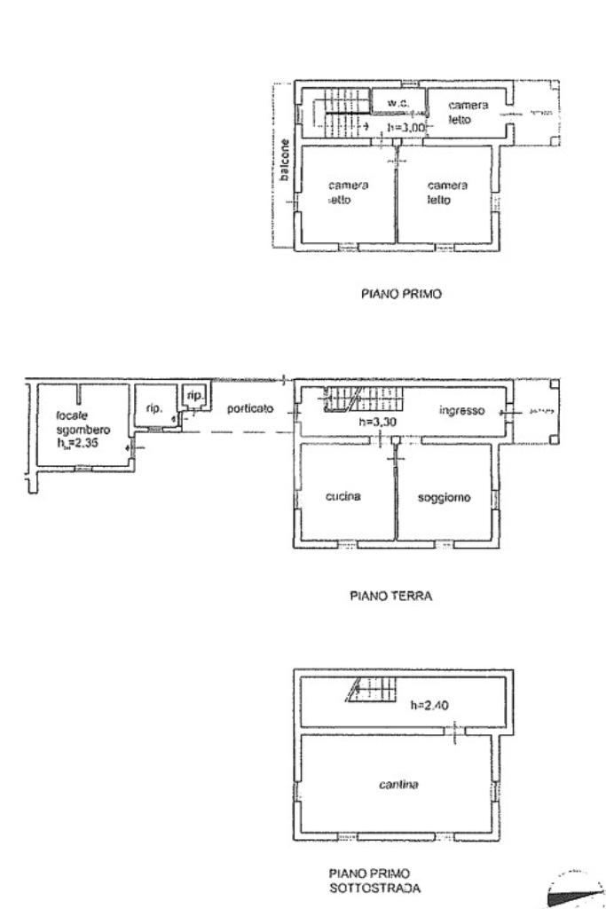
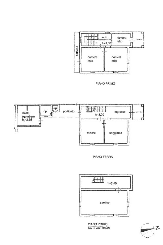
Questa proprietà si sviluppa su due livelli abitativi. Al piano terra troverete un ampio soggiorno e una cucina abitabile; al piano superiore due camere da letto matrimoniali, una stanza singola e il bagno, rendendo quindi la soluzione adatta ad ogni tipo di famiglia. Sono inoltre presenti un lungo balcone con affaccio sul giardino privato e un comodo terrazzo.

Un cascinale e una piccola dépendance offrono la possibilità di ricavare un'ulteriore soluzione abitativa o uno spazio per attività ricreative.

All'esterno, un giardino privato con pozzo e un ampio terreno con alberi da frutto rappresentano un'oasi di tranquillità, perfetta per momenti di relax all'aperto.

Completano la proprietà due box auto, garantendo comodità e sicurezza per i vostri veicoli e la cantina al piano seminterrato. Questa casa rappresenta un'opportunità unica per chi cerca spazio e indipendenza in una zona rinomata.

Per maggiori informazioni contattare l'agenzia immobiliare Tecnocasa sita in Voghera (PV) via Plana Giovanni, 34.
Ogni agenzia ha un proprio titolare ed è autonoma.
Il nostro Studio si trova in centro storico, zona pedonale, sulla via che collega la stazione ferroviaria con la via Emilia.

Gli orari di apertura al pubblico sono:
da LUNEDI a VENERDI 9.00-12.30 - 14.30- 19.00
SABATO 9.00-12.30

Siamo presenti anche su Facebook ed Instagram.

Per una ricerca più rapida e in mobilità potete scaricare dal vostro smartphone o tablet l'applicazione gratuita Tecnocasa.

Avrete aggiornamenti delle nostre nuove proposte sempre in tempo reale!

Mostra tutto

Nelle vicinanze

Trasporto pubblico Trasporto pubblico
Trasporto pubblico
460 m
ARFEA - Varzi-Voghera
ARFEA - Varzi-Voghera
770 m
Ricariche auto elettriche Ricariche auto elettriche
Rivanazzano Piazza Los Palacios | EnelX
310 m
Municipio di Rivanazzano | EnelX
450 m
Rivanazzano Piazza Italia | EnelX
580 m
Salice Terme Taramelli | EnelX
1,3 Km
Salice Terme Marconi | EnelX
1,5 Km
Ospedali Ospedali
Fondazione Don Carlo Gnocchi - Centro Santa Maria alle Fonti
2,0 Km
Villa Esperia - Casa di Cura e Riabilitazione
2,7 Km
centro paolo VI
2,8 Km
Bar Bar
Gelateria Albertini
450 m
Soqquadro
1,4 Km
Dancing La Buca
1,5 Km
Club House - Salice Terme
1,7 Km
Discoteca Club House
1,7 Km
Ristoranti Ristoranti
Il covo
500 m
Ristorante Selvatico
660 m
Ristorante Ciabot
730 m
Il Gabbiano
1,5 Km
Agriturismo Giada
2,1 Km
Mostra tutto

Caratteristiche

Rif.:
61132402
Piano:
Su più livelli di 1
Totale piani:
1
Box:
2
Balconi:
1
Terrazzi:
1
Mostra tutto
Prezzo Prezzo
€ 169.000
Rata mutuo Rata mutuo
€ 796 / mese
Spese annue Spese annue
€ 0
Proponi il tuo prezzoProponi il tuo prezzo

Classe Energetica

F
F
F
F
F
F
F
F
F
EP globale non rinnovabile:
327.39 kW h/m² anno
EP invernale del fabbricato:
EP estiva del fabbricato:
Anno di costruzione:
1960
Riscaldamento:
Autonomo
Tipo impianto:
A radiatori
Tipo alimentazione:
Metano

Ti interessa visionare l'immobile?

Fissa un appuntamento  Fissa un appuntamento

Richiedi informazioni

Clicca su Leggi per aprire l'informativa
* Questi campi sono obbligatori

Calcola il tuo mutuo

Semplice e senza impegno
Anticipo

( % )
Mutuo

( % )

pochi semplici passi

inserisci i tuoi dati
Questionario completato
Grazie per aver richiesto un appuntamento senza impegno con un nostro Consulente del Credito e Assicurativo.

Hai inserito correttamente tutti i dati necessari e a breve riceverai una e-mail con un link da convalidare per inviare i tuoi dati.
Affiliato
Studio Voghera Uno Sas
Via Giovanni Plana, 34 27058 Voghera (PV)

Il nostro staff


  • Mohammed Dodi Bensoltane
    Affiliato

  • Gioele De Lio
    Collaboratore
Via Giovanni Plana, 34 27058 Voghera (PV)
Zona: Voghera-Zona Cignoli-Medassino-Casei Gerola-Corana-Oriolo
Mostra su mappa
Orari: Lunedi - Venerdì 09:00 - 12:30 14:30 - 19:00 Sabato 09:00 - 12:30
Affiliato
Studio Voghera Uno Sas
Via Giovanni Plana, 34 27058 Voghera (PV)

2026 Tecnocasa Franchising S.p.A. - P. IVA 08365160152 - Via Monte Bianco 60/A 20089 Rozzano (MI). Ogni agenzia ha un proprio titolare ed è autonoma. Privacy policy | Policy utilizzo | Cookie policy